Vivienda MG
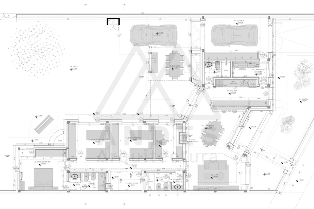
Vivienda unifamiliar de tres dormitorios diseñada para responder a las necesidades de una familia moderna, combinando funcionalidad, calidez y conexión con el entorno. El programa incluye un área social integrada (living, cocina y comedor), tres baños, garage y un amplio patio con fogón, pensado como espacio de encuentro y disfrute al aire libre.
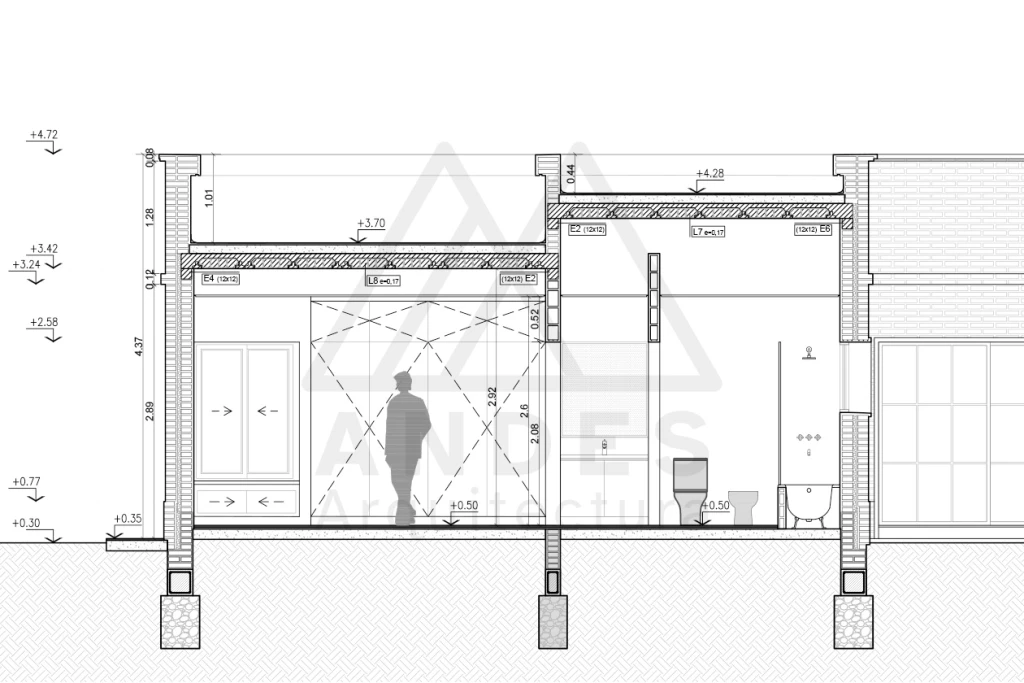
La materialidad elegida —ladrillo visto, carpinterías de aluminio y detalles en madera y metal— aporta solidez, bajo mantenimiento y una estética sobria y contemporánea. Las aberturas generosas y la orientación fueron claves para garantizar luminosidad natural y continuidad entre interior y exterior.
Se desarrolló un trabajo integral que abarcó desde el diseño arquitectónico y la elaboración del legajo técnico hasta la generación de imágenes y la dirección de obra. Esta participación completa permitió asegurar coherencia en todas las etapas del proceso, logrando una vivienda funcional, cuidada en sus detalles y adaptada a las expectativas del cliente.




.webp)

.webp)
.webp)
.webp)


