Vivienda LTR
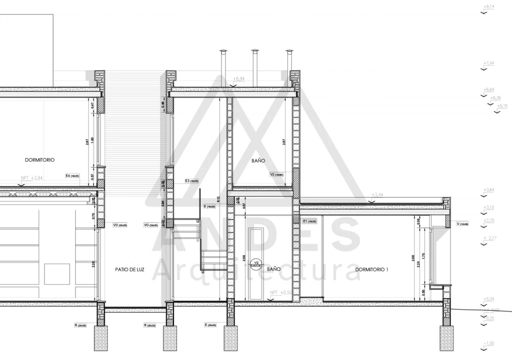
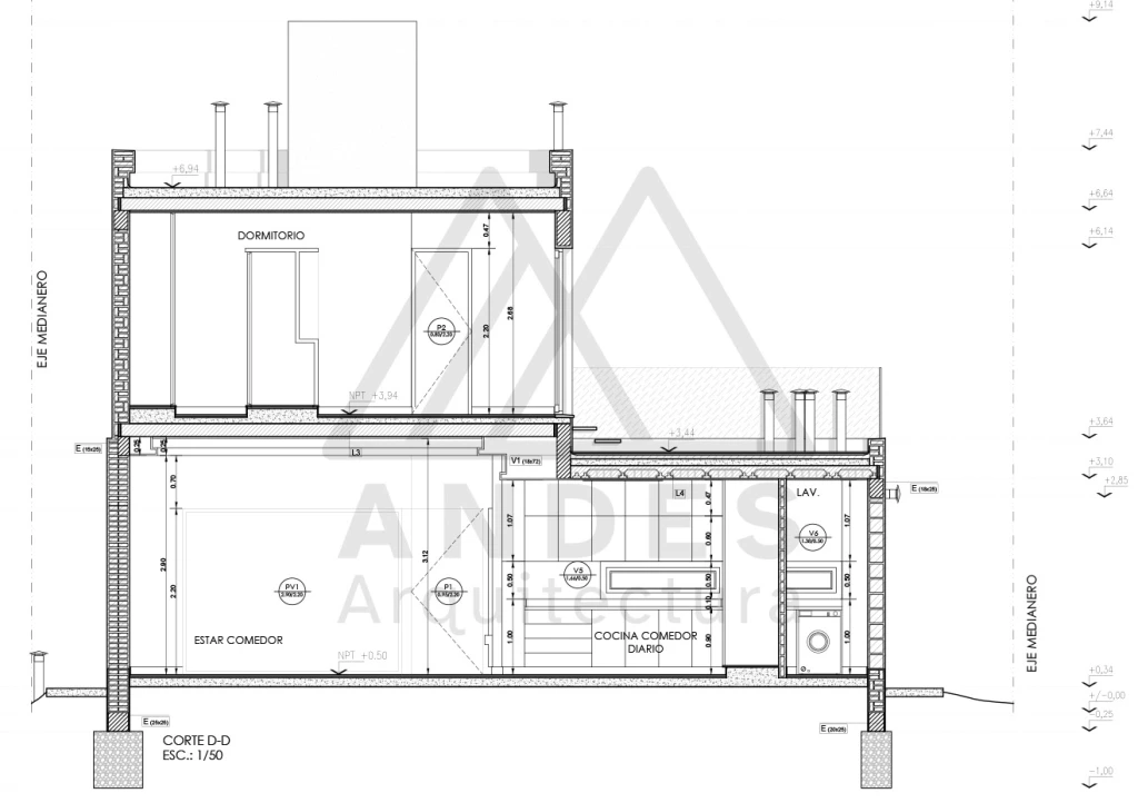
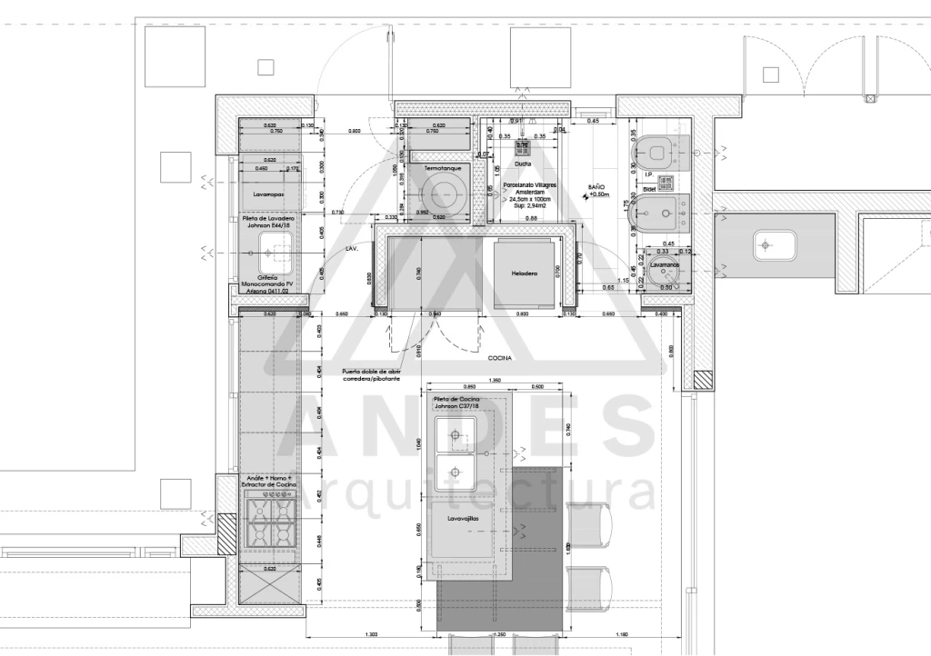
Vivienda unifamiliar en barrio cerrado, desarrollada en dos plantas sobre un lote exento de medianeras. El programa incluye cocina, living y comedor integrados, un dormitorio en planta baja, dos dormitorios en planta alta y tres baños distribuidos estratégicamente para el uso cotidiano y la comodidad de sus habitantes.
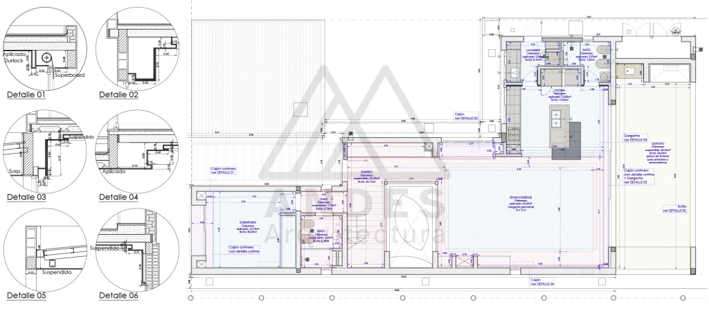
El quincho se proyectó como una expansión directa del área social, generando continuidad entre interior y exterior. El patio, equipado con pileta, refuerza la propuesta de una vivienda pensada para el disfrute y la vida al aire libre, con una organización funcional que prioriza la claridad espacial y la iluminación natural.
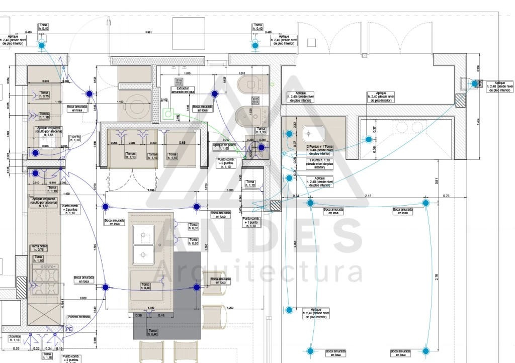
Se trató de un trabajo tercerizado para un estudio de la ciudad de Rosario, en el que se participó activamente en el desarrollo del proyecto, la elaboración del legajo técnico completo y el modelado 3D. La coordinación fluida entre diseño y documentación permitió consolidar una propuesta precisa y bien resuelta, lista para su ejecución.
.webp)
.webp)
.webp)
.webp)
.webp)
.webp)
.webp)
.webp)
.webp)
.webp)
.webp)