Vivienda CyL
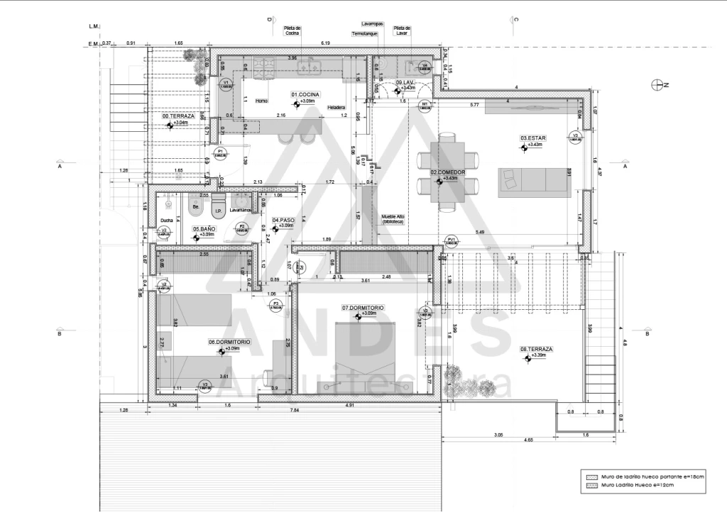
Vivienda unifamiliar en planta alta, proyectada como una ampliación independiente sobre una vivienda existente. El programa incluye dos dormitorios, un área social integrada —estar, cocina y comedor— y una terraza que se proyecta hacia el patio compartido, funcionando como expansión y espacio de encuentro.
La planta se organiza para aprovechar al máximo la superficie disponible, priorizando la fluidez espacial, la entrada de luz natural y la relación con el exterior. La terraza aporta apertura y respiro dentro de un entorno urbano consolidado, estableciendo una conexión visual y afectiva con el patio familiar.
Se desarrolló el proyecto arquitectónico completo y el legajo técnico para su ejecución. El resultado es una vivienda compacta, funcional y luminosa, que responde con sensibilidad tanto a las condiciones del sitio como a las necesidades del cliente
.webp)
.webp)
.webp)