Vivienda CD
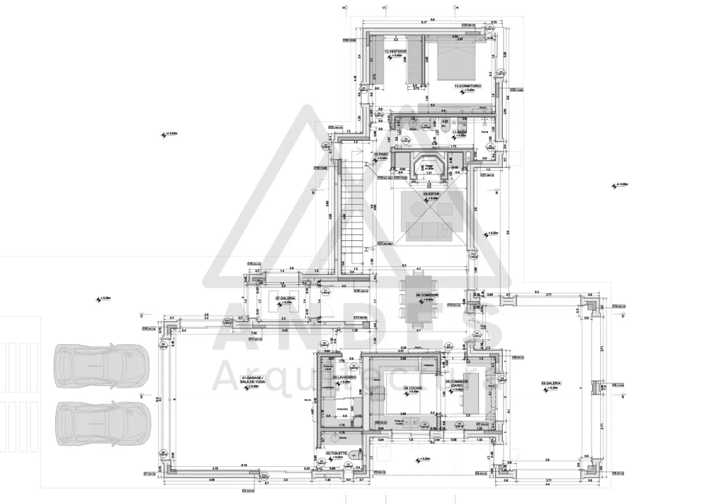
Vivienda unifamiliar de dos plantas, concebida para una familia que requería espacios flexibles y bien definidos. El programa incluye un garage para dos autos con posibilidad de funcionar como salón para clases de yoga, cocina con comedor diario, living comedor, un dormitorio en planta baja y dos dormitorios en planta alta, distribuidos para asegurar funcionalidad y privacidad.
El diseño propuso una arquitectura sobria y contemporánea, en la que la estructura de hormigón armado —aunque no queda expuesta— cobra un rol protagónico tanto en la organización espacial como en la expresión formal de la vivienda. La interacción temprana y constante con el ingeniero estructural fue clave para integrar estructura y arquitectura desde las primeras definiciones del proyecto.
Se trató de un trabajo tercerizado para un estudio de la ciudad de Rosario, en el que se participó activamente en el desarrollo del proyecto, la elaboración del legajo técnico completo y el modelado 3D. Esta colaboración permitió consolidar una propuesta precisa, bien coordinada y lista para una ejecución eficiente, con especial atención a los aspectos constructivos y estructurales.
.webp)
.webp)
.webp)
.webp)
.webp)
.webp)
.webp)