Vivienda 389
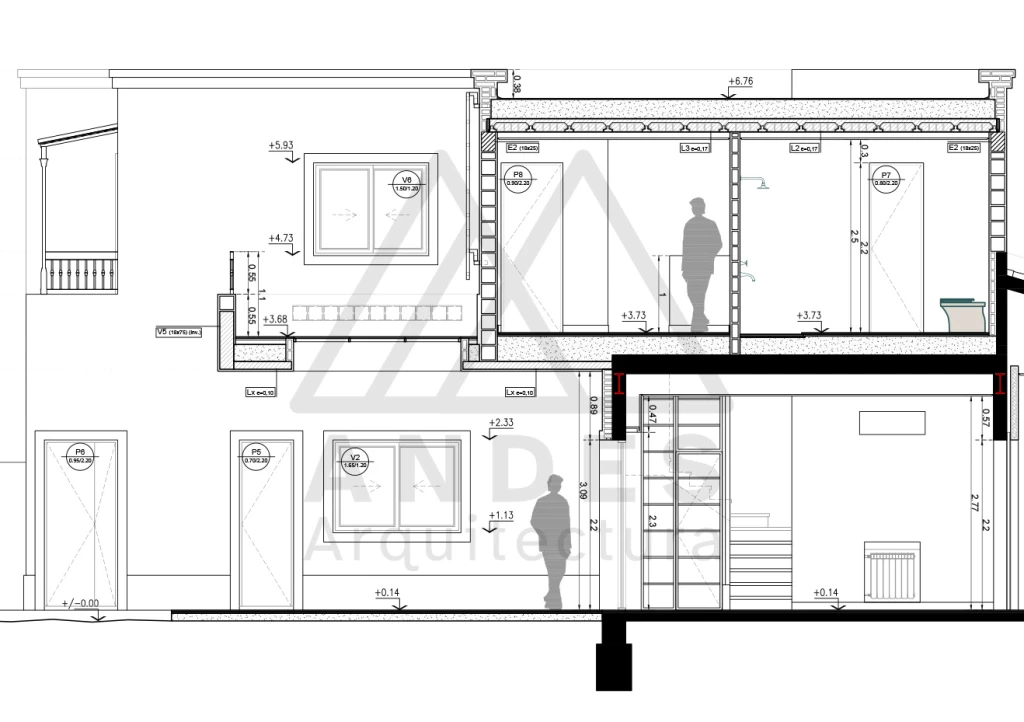
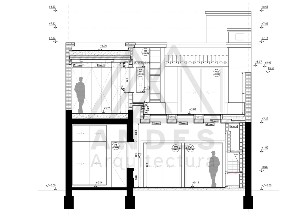
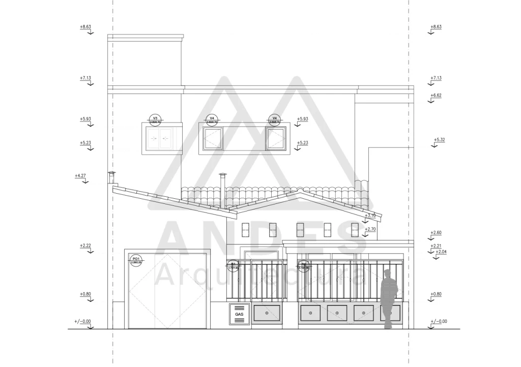
Reforma integral, desarrollada sobre una construcción preexistente de una sola planta. El proyecto, a cargo de un estudio de Rosario, planteó una transformación completa que incorporó una planta alta con dos dormitorios, un baño y una terraza, ampliando notablemente la superficie y las prestaciones de la vivienda.
En planta baja se reorganizó la parte social, integrando cocina, comedor y living, sumando un dormitorio para huéspedes, baño con antebaño, cava, garage y un quincho como expansión directa del área social. El nuevo patio, equipado con pileta, aporta calidad ambiental y una fuerte conexión con el exterior, completando la propuesta con un espacio de disfrute y encuentro.
Se colaboró activamente en la elaboración del legajo técnico y en el modelado 3D del proyecto, aportando precisión y detalle al proceso. Esta participación permitió apoyar al estudio proyectista en la comunicación con los clientes y en la planificación de obra, facilitando la ejecución de una reforma compleja y ambiciosa.
.webp)
.webp)
.webp)
.webp)
.webp)
.webp)
.webp)
.webp)


