Reforma SJ
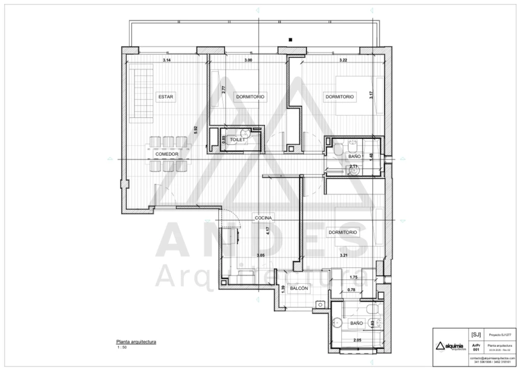
Proyecto ejecutivo y visualización 3D para la reforma integral de un departamento de más de 50 años de antigüedad, con el objetivo de renovar completamente su infraestructura y adecuarlo a las necesidades actuales de confort y funcionalidad.
La propuesta incluyó el rediseño total de la distribución interior, la actualización de instalaciones sanitarias y eléctricas, nuevos pisos y revestimientos, incorporación de aberturas, amoblamientos y equipamiento interior, logrando una transformación completa del espacio.
Se desarrolló la totalidad del legajo técnico en entorno BIM, utilizando Revit para asegurar una documentación precisa y coordinada. La visualización 3D acompañó el proceso como herramienta clave para validar decisiones de proyecto y garantizar una ejecución fiel por parte del estudio a cargo de la obra.
.webp)
.webp)
.webp)
.webp)
.webp)


